建筑问答网A125.com > 专业造价 > 土建工程 > 提问

楼梯面积计算问题 楼梯,面积,计算

已解决  --    --  6个回答  次浏览0
分享微信 发送朋友 打印
提问人:95255268 - 泥土工 2级  举报  
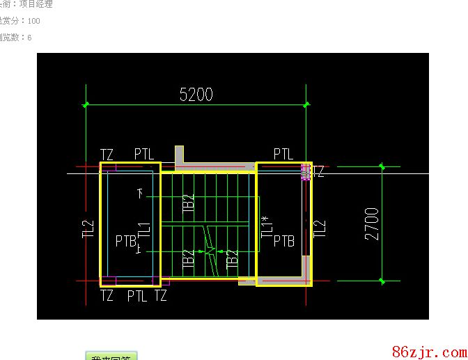
请问一下,四川这样的楼梯应怎计算楼梯投影面积?
最佳答案
楼层: 1
回答人:23038345 - 泥土工 2级 - 提交时间:2015/12/5 17:28:00  举报

如图片中的黄框范畴。

  建筑问答网永远以提供国内外最新、最好、最快的造价专业资讯为目标

中国最佳造价交流网站,致力于建设专为造价同行服务的自由交流家园

 

建筑问答网永远以提供国内外最新、最好、最快的造价专业资讯为目标

我要评论 好评次数 0   坏评次数 0
对最佳答案的评论

评论字数在200 字以内
  好评 坏评
共 6 条 普通回答
楼层: 2
回答人:44647519 - 泥土工 2级 - 提交时间:2015/12/6 2:25:00  举报
        四川这样的楼梯应该按楼梯的净面积去计算投影面积的。
楼层: 3
回答人:09128619 - 泥土工 2级 - 提交时间:2015/12/6 4:34:00  举报
楼梯;建筑面积不需要单独拿出来计算,直接计算外墙与整体的一起计算即可。。。。计算混凝土是净面积,不含楼层平台。。
楼层: 4
回答人:65966800 - 泥土工 2级 - 提交时间:2015/12/6 12:42:00  举报
四川这样的楼梯应怎计算楼梯投影面积?

楼层: 5
回答人:61877677 - 泥土工 2级 - 提交时间:2015/12/6 22:17:00  举报

楼层: 6
回答人:67679407 - 泥土工 2级 - 提交时间:2015/12/7 7:47:00  举报

楼梯水平投影面积计算:楼梯踏步段和休息平台投影面积计入楼梯面积;

与楼层板标高相连的平台不算楼梯面积,与楼层相连的平台板计入楼板工

程量。

楼层: 7
回答人:84520624 - 泥土工 2级 - 提交时间:2015/12/7 17:20:00  举报
楼梯的工程量计算是梯段加缓步台的水平投影面积,以净边线为准。