建筑问答网A125.com > 专业造价 > 装饰工程 > 提问

这种铁艺栏杆的计算长度是哪一段? 计算,交流,长度

已解决  --    --  3个回答  次浏览0
分享微信 发送朋友 打印
提问人:70219264 - 泥土工 2级  举报  
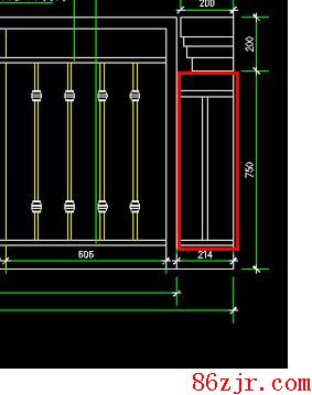
计算工程量的长度是1.77 还是2.2?
最佳答案
楼层: 1
回答人:59453539 - 泥土工 2级 - 提交时间:2016/7/11 9:25:00  举报

我认为应该为1.77米的。

750mm高段应该单独计算考虑的:


造价行业最大的互动问答知识信息交流分享平台,凝聚了 造价行业网友的智慧

因为750mm高段做法、高度均差别的。

中国最佳造价交流网站,致力于建设专为造价同行服务的自由交流家园


我要评论 好评次数 0   坏评次数 0
对最佳答案的评论

评论字数在200 字以内
  好评 坏评
共 3 条 普通回答
楼层: 2
回答人:35926559 - 泥土工 2级 - 提交时间:2016/7/11 16:14:00  举报
计算工程量的长度是2.2m。因为1.77只是围墙栏杆的一部分,栏杆是按栏杆长度计算工程量。
楼层: 3
回答人:62525787 - 泥土工 2级 - 提交时间:2016/7/11 21:31:00  举报
如果套重量的

,得对比下实际与定额的含量。按实际的输入
楼层: 4
回答人:61770063 - 泥土工 2级 - 提交时间:2016/7/12 2:08:00  举报
综合看应该算2.2米,你不可能一个栏杆两个单价的。