建筑问答网A125.com > 专业造价 > 装饰工程 > 提问

木工板外面沙比利饰面板刷清漆,那木工板还用刷防火漆吗? 木工,防火,崎岖

已解决  --    --  0个回答  次浏览0
分享微信 发送朋友 打印
提问人:05433820 - 泥土工 2级  举报  
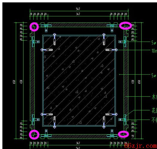
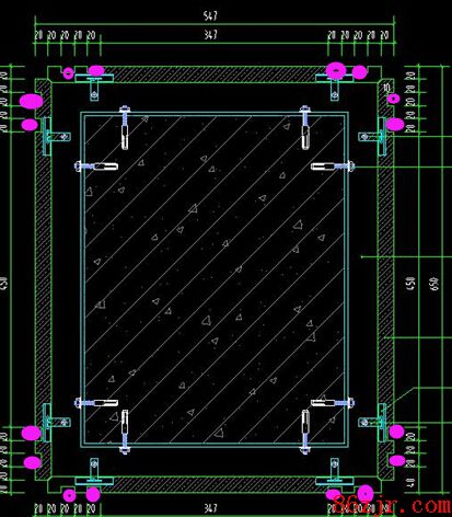
1、木工板外面沙比利饰面板刷清漆,那木工板还用刷防火漆吗?2、石材磨边是个数乘以长度,那个数怎么确定?那张柱图中是按一边2个,还是把那些崎岖处的边也要算进去?
最佳答案
楼层: 1
回答人:95413708 - 泥土工 2级 - 提交时间:2016/7/31 15:48:00  举报

1、木工板外面沙比利饰面板刷清漆,那木工板还用刷防火漆吗?

【防火漆还是要刷的,只不过只刷迎火面就可以,里面就不需要了】

 2、石材磨边是个数乘以长度,那个数怎么确定?

【石材磨边是角部的磨边,每块板都是两边共计4道的】

中国最佳造价交流网站,致力于建设专为造价同行服务的自由交流家园

 

那张柱图中是按一边2个,还是把那些崎岖处的边也要算进去? 建筑问答网永远以提供国内外最新、最好、最快的造价专业资讯为目标

【崎岖处的不计算的,但是崎岖的开槽用度要单独计算的,每面都要计算4道的,共计16道】

 


我要评论 好评次数 0   坏评次数 0
对最佳答案的评论

评论字数在200 字以内
  好评 坏评