问答首页
我要提问
问题分类
更多
▼
专题
专业机构
专家团
排行榜
共享资料
积分商城
帮助
由于浏览器不支持或者禁用JavaScript,您可能不能使用到本网站的所有功能。
按地区找问题
--请选择--
北京
天津
河北
山西
内蒙古
辽宁
吉林
黑龙江
上海
江苏
浙江
安徽
福建
江西
山东
河南
湖北
湖南
广东
广西
海南
四川
贵州
云南
西藏
重庆
陕西
甘肃
青海
宁夏
新疆
其他
建筑问答网A125.com
>
专业造价
>
装饰工程
> 提问
精装修吊顶天棚
定额
,
规则
,
凭据
已解决 --
-- 2个回答
次浏览
0
分享微信
发送朋友
打印
18565630
提问人:
18565630
-
泥土工 2级
举报
(
北京
地区08
清单
,01
定额
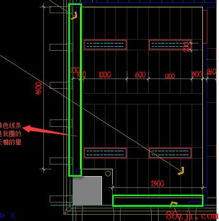
)左侧的是原CAD图纸,右侧是我用黄色的线条圈的矿棉板吊顶的面积,窗帘盒的长度也量出来了。并上传了北京01定额和08清单吊顶的计算规则。结论1:凭据01定额规则我算的“龙骨”
工程
量为17.3(也就是黄色线条圈的面积)结论2:凭据01定额规则我算的“矿棉板”工程量为17.3-0.36*4=15.86(扣掉4个灯槽,单个大于0.3m2了)结论3:窗帘盒有局部深入柱子了,这局部我扣掉了,所以量出来是4.5+2.5=7问题:我算的对吗?
问题补充
提高悬赏
无满意答案
管理此问题
我来回答
最佳答案
07152481
楼层: 1
回答人:
07152481
-
泥土工 2级
- 提交时间:
2016/5/28 23:58:00
举报
结论1:凭据01定额规则我算的“龙骨”工程量为17.3(也就是黄色线条圈的面积) 结论2:凭据01定额规则我算的“矿棉板”工程量为17.3-0.36*4=15.86(扣掉4个灯槽,单个大于0.3m2了) 结论3:窗帘盒有局部深入柱子了,这局部我扣掉了,所以量出来是4.5+2.5=7 问题:我算的对吗?4.5米有短了
我要评论
0
0
对最佳答案的评论
评论字数在200 字以内
好评
坏评
共 2 条
普通回答
72089511
楼层: 2
回答人:
72089511
-
泥土工 2级
- 提交时间:
2016/5/29 2:54:00
举报
精装修吊顶天棚,按计算规则计算是正确的。
89059817
楼层: 3
回答人:
89059817
-
泥土工 2级
- 提交时间:
2016/5/29 11:03:00
举报
黄圈里的面积不用扣灯;
窗帘盒不算柱子。
我来回答
本站公告
相关问题
定额模板无法克隆
补充定额时怎样编制定额细目表
交通部是否有2015定额?
清水墙怎么套用定额,施工工艺要求比较高,比挡土墙造价要高许多。清水墙就是用好的石头材料人工码砌,里面有砂浆浆砌,外面看不到砂浆,就像公园里的城墙。
请问RX-075型被动防护网怎么套定额?
第100章中的保险结算时应该怎样计算?有何依据?
07公路定额的材料消耗量是否都不包含损耗的?是不是都要通过统计混凝土需计拌和量来重新填写定额工程量才行?
如何补充定额
定额消耗为何不能调整
陕西省的预算中 浆砌片石的定额 在定额人工上需要乘以0.6的系数? 有这规定吗?有的话 这条有什么依据? 请告知
当前项包含子项 不允许添加定额
机械的不变费用,软件里比定额里的低,这个费用是受什么影响。软件里是215.29,定额里是245.
减速条套用什么定额?
交通部公路07定额中,关于桥面铺装混凝土、预制梁混凝土等混凝土凿毛工序含不含在定额中?
1-11-1是什么定额怎么找不到