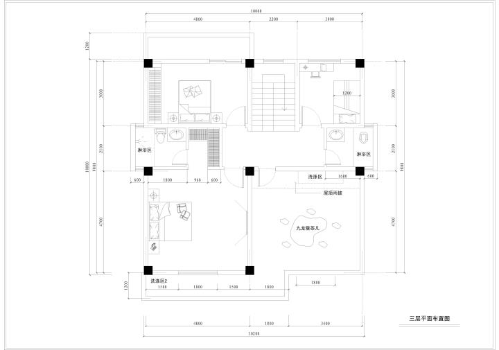
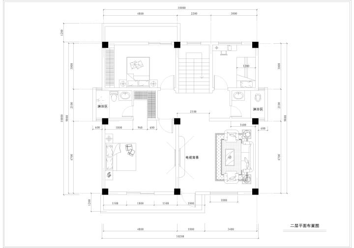
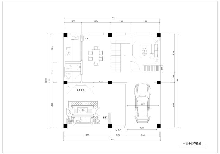
准备在农村老家自建一栋3层楼房,接纳砖混结构,具体平面结构如图所示,不知道砖混结构楼上楼下结构不一样行不可,一定要加梁吗?如果要加应该加在哪里?麻烦列位大牛援助看看,多谢列位了。 86造价网永远以提供国内外最新、最好、最快的造价专业资讯为目标



|
||
|
共 11 条
普通回答
|
本站公告相关问题 |