问答首页
我要提问
问题分类
更多
▼
专题
专业机构
专家团
排行榜
共享资料
积分商城
帮助
由于浏览器不支持或者禁用JavaScript,您可能不能使用到本网站的所有功能。
按地区找问题
--请选择--
北京
天津
河北
山西
内蒙古
辽宁
吉林
黑龙江
上海
江苏
浙江
安徽
福建
江西
山东
河南
湖北
湖南
广东
广西
海南
四川
贵州
云南
西藏
重庆
陕西
甘肃
青海
宁夏
新疆
其他
建筑问答网A125.com
>
建筑施工
>
项目管理
> 提问
求设计师帮忙看看?
 
,
设计师
,
帮忙
未解决 --
-- 11个回答
次浏览
0
分享微信
发送朋友
打印
76883
提问人:
76883
-
泥土工 2级
举报
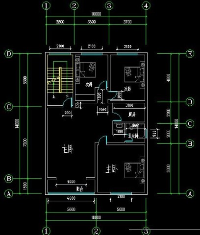
农村自建房,
预算
是占地130方左右,三层别墅,这样设计,有没有什么需要注意或者变动的?
第一层
二层
建筑问答网永远以提供国内外最新、最好、最快的造价专业资讯为目标
三层
3D图
问题补充
提高悬赏
无满意答案
管理此问题
我来回答
回答即可得20分,回答被采纳则获得悬赏分以及奖励50分。
积分规则
参考资料:
如果您的回答是从其他地方引用,请表明出处网址。
共 11 条
普通回答
71664
楼层: 1
回答人:
71664
-
泥土工 2级
- 提交时间:
2015/5/20 13:56:00
举报
墙是搁在梁上.二.三层梯间.卫生间不一致.要在墙下设梁了.
42496800
楼层: 2
回答人:
42496800
-
泥土工 2级
- 提交时间:
2015/5/20 19:18:00
举报
主要问题要考虑结构问题,其次是功能,只要方便使用就可以
75435649
楼层: 3
回答人:
75435649
-
泥土工 2级
- 提交时间:
2015/5/20 23:56:00
举报
功能布置须合理,结构布置须合理,外管要美管,使用要方便。
36425129
楼层: 4
回答人:
36425129
-
泥土工 2级
- 提交时间:
2015/5/21 4:02:00
举报
结构布置要合理
99191516
楼层: 5
回答人:
99191516
-
泥土工 2级
- 提交时间:
2015/5/21 8:04:00
举报
厨房太多了吧!如今都考虑卧室带内卫的、拙见、、、
50453727
楼层: 6
回答人:
50453727
-
泥土工 2级
- 提交时间:
2015/5/21 14:50:00
举报
入户门对卫生间不好。客厅主卧外侧应加阳台。
67696354
楼层: 7
回答人:
67696354
-
泥土工 2级
- 提交时间:
2015/5/21 21:10:00
举报
还是多考虑下卫生间吧!
84214094
楼层: 8
回答人:
84214094
-
泥土工 2级
- 提交时间:
2015/5/22 1:22:00
举报
这样的房子还不如廉租房,怎么可以说是别墅,还是请个专业人士设计一下,或者在网上找找,真有点浪费软件
84502497
楼层: 9
回答人:
84502497
-
泥土工 2级
- 提交时间:
2015/5/22 8:26:00
举报
按我看.厨房3100太长.浪费资源.大厅稍窄.
18082659
楼层: 10
回答人:
18082659
-
泥土工 2级
- 提交时间:
2015/5/22 17:26:00
举报
厕所问题是第一个,其实就是造型,既然做别墅了,干嘛不想个造型呢?
99411315
楼层: 11
回答人:
99411315
-
泥土工 2级
- 提交时间:
2015/5/23 1:56:00
举报
只要自己觉得适用就可以。'
我来回答
本站公告
相关问题
设计师不得不看的施工手册?
五一到了,我也想辞职去看看
求同门师兄大神们帮帮忙?
谁有88JZ-50图籍帮忙发一下
请帮帮忙给我一个实验室大楼精装修的预算案例哦
40米大箱梁斜边腹板问题?
谁有市政二建的题帮忙上传一下?
请帮忙鉴定这座桥是ps的吗?
帮忙看看这些结构墙能否拆除呢?
如何用光连接建筑和园林?
建筑设计的任务与意义是什么?
建筑设计使用CAD技术的缺点是什么?
一个好的交互设计师是怎样成长起来的,交互设计师应该具备什么素质?
家装设计的设计费一般在什么阶段交钱比较好?
装修公司的设计师为什么不是靠设计费赚钱?