建筑问答网A125.com > 建筑施工 > 施工技术 > 提问

基础梁钢筋伸入桩承台要过桩中心吗? 钢筋,基础,中心

未解决  --    --  11个回答  次浏览0
分享微信 发送朋友 打印
提问人:81082 - 泥土工 2级  举报  
   基础梁钢筋伸入桩承台时,在锚固长度已满足规范要求的前提条件下,基础梁钢筋还不到桩中心,钢筋是否还要继续加长直至过桩中心?有没有准则图集什么的依据资料?
回答即可得20分,回答被采纳则获得悬赏分以及奖励50分。 积分规则
参考资料:
如果您的回答是从其他地方引用,请表明出处网址。
共 11 条 普通回答
楼层: 1
回答人:44508263 - 泥土工 2级 - 提交时间:2022/4/7 17:02:00  举报

 基础梁钢筋伸入桩承台,以及是否贯穿承台,按图纸设计确定。

如果仅是锚固可以参照以下做法:

 

 

可以参考下面图集:

11G101-3图集(独立基础条形基础筏形基础及桩基承台)

12G901-3混凝土结构施工钢筋排布规则与构造详图(独立基础、条形基础、筏形基础、桩基承台)

楼层: 2
回答人:13313818 - 泥土工 2级 - 提交时间:2022/4/7 23:26:00  举报
基础梁钢筋伸入桩承台时,在锚固长度(注意:基础梁受力钢筋锚固长度是从柱边开始计算的)已满足规范要求的前提条件下,基础梁钢筋可以不到桩中心。
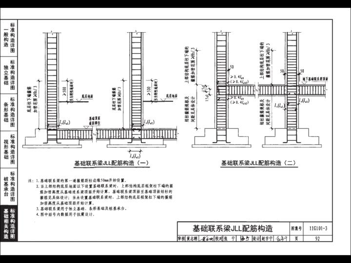
可以参考11G101-3第92页和12G901-3第5-1和5-2页。
截图如下:




楼层: 3
回答人:14869387 - 泥土工 2级 - 提交时间:2022/4/8 5:28:00  举报
以单桩承载力特征值为依据,反推上部荷载标准值及设计值,两桩梁式承台按深受弯构件计算抗弯、抗剪承载力和正常使用阶段的裂缝,裂缝按永久荷载作用计算
楼层: 4
回答人:19432359 - 泥土工 2级 - 提交时间:2022/4/8 14:34:00  举报
不需要从图集找依据,从基本原理判断就可。对基础梁来说,要看它的支座是柱还是承台?如果是柱,就按梁伸入柱的构造要求着判断;如果是承台,基础梁的钢筋锚固在承台中达到构造要求便可,与桩无丝毫联系。至于桩与承台的关系,那已经是另一回事了。
楼层: 5
回答人:05418747 - 泥土工 2级 - 提交时间:2022/4/8 23:57:00  举报

可以看一下下面的图集:

楼层: 6
回答人:14078658 - 泥土工 2级 - 提交时间:2022/4/9 6:19:00  举报

提醒1楼、8楼,请看清后再发言,勿误导人!


楼层: 7
回答人:56543570 - 泥土工 2级 - 提交时间:2022/4/9 14:20:00  举报
楼层: 8
回答人:88004799 - 泥土工 2级 - 提交时间:2022/4/9 22:30:00  举报

达到锚固长度可以不用达到桩中心

楼层: 9
回答人:99656142 - 泥土工 2级 - 提交时间:2022/4/10 0:24:00  举报
主要看设计是按什么方式设计的基础梁,个别地区设计时按照KZL设计,这种设计要按KZL构造要求,不仅要过桩中心,还要下锚,如果按承台设计就不需要

楼层: 10
回答人:69636864 - 泥土工 2级 - 提交时间:2022/4/10 6:59:00  举报

这里的基础梁实际上是承台与承台之间的联系梁。

根据《建筑桩基技术规范》(JGJ94-2008)第4.2.6条“5 ......位于同一轴线上的相邻跨联系梁纵筋应连通” 。

楼层: 11
回答人:77350608 - 泥土工 2级 - 提交时间:2022/4/10 16:03:00  举报
这个第一要看设计图纸,要求的对应混凝土标号的钢筋锚固长度