建筑问答网A125.com > 建筑施工 > 施工技术 > 提问

楼板放射筋应该如何布置? 放射,板筋,交流

未解决  --    --  5个回答  次浏览0
分享微信 发送朋友 打印
提问人:80721 - 泥土工 2级  举报  

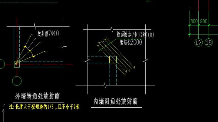
楼板的放射筋应该放在上层板筋上还是放在下层板筋上,还是上下层板筋都要安排啊?(现浇板端部转角处应设置不少于7Φ10、长度不小于1/3板跨且不小于1.5m的放射形钢筋。住宅建筑工程质量通病防治办法中的内容)造价行业最大的互动问答知识信息交流分享平台,凝聚了 造价行业网友的智慧

回答即可得20分,回答被采纳则获得悬赏分以及奖励50分。 积分规则
参考资料:
如果您的回答是从其他地方引用,请表明出处网址。
共 5 条 普通回答
楼层: 1
回答人:83826884 - 泥土工 2级 - 提交时间:2018/8/25 3:49:00  举报
宅建筑工程质量通病防治措施之一,是为了防止现浇板端部转角处裂缝,而放置的附加钢筋,是放在上层板筋上的,一般设计都会注明,如下图:



楼层: 2
回答人:71972 - 泥土工 2级 - 提交时间:2018/8/25 8:03:00  举报
楼板的放射筋主要承受负弯矩,应该放在上层板筋上.
楼层: 3
回答人:61312721 - 泥土工 2级 - 提交时间:2018/8/25 13:59:00  举报

放射筋一般是在建筑物的山墙的四个大角的板(包括伸缩缝两边)。或者是板跨度较大(超过3.9米)的双向板的四个角,布置。
放射筋顾名思义呈放射状,以角点为准向外分布(沿对角线方向)。长度为1/4板跨度,数量根据构造需要(设计会给出)双层上下布置。
目的是为了防止大板、和建筑物山墙部位容易受温度影响而产生细微的裂缝。

楼层: 4
回答人:00722584 - 泥土工 2级 - 提交时间:2018/8/25 22:03:00  举报
按照11G101——1图集的规定(103页): 一般楼板的放射筋应该放在上层板筋上。有时是否上下层板筋都要布置,这要看设计是如何要求的。
楼层: 5
回答人:46483984 - 泥土工 2级 - 提交时间:2018/8/26 4:32:00  举报
面筋之上  1.5米每根  在构件阳角处  分散布置 一般为7根  图纸上一般有原位标注.