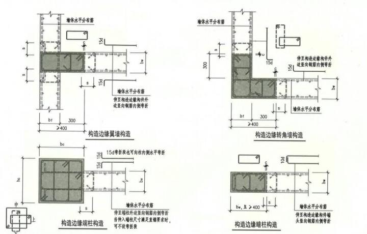
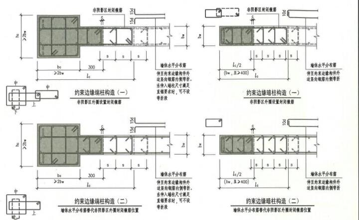
剪力墙水平筋是不是务须要安排弯钩的?
造价行业最大的互动问答知识信息交流分享平台,凝聚了 造价行业网友的智慧
还有就是,弯钩是否一定要伸过两边暗柱的最外侧竖向纵筋,还是水平筋只要伸入两边暗柱的锚固长度就行了?
请教一下中国最佳造价交流网站,致力于建设专为造价同行服务的自由交流家园
造价行业最大的互动问答知识信息交流分享平台,凝聚了 造价行业网友的智慧






闽公网安备 35012102500499号