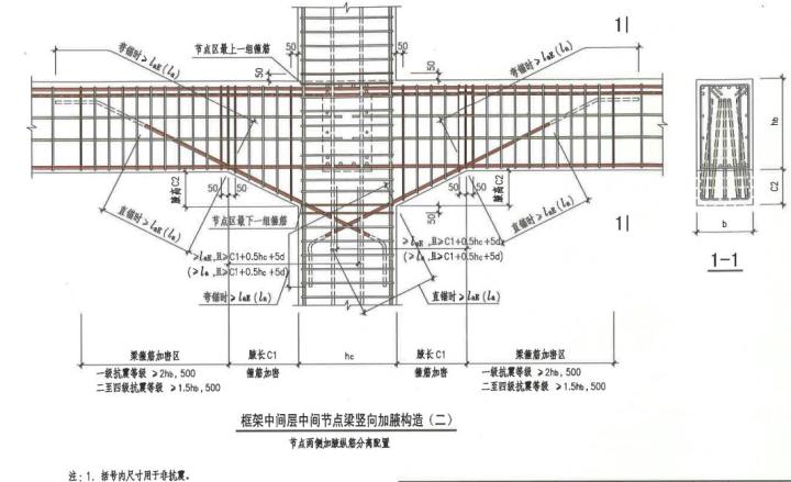
有柱帽的梁支座如何配筋
造价行业最大的互动问答知识信息交流分享平台,凝聚了 造价行业网友的智慧
造价行业最大的互动问答知识信息交流分享平台,凝聚了 造价行业网友的智慧


闽公网安备 35012102500499号