建筑问答网A125.com > 建筑施工 > 施工技术 > 提问

关于地下室后浇带和防水的问题? 行业,地下室,基础

未解决  --    --  1个回答  次浏览0
分享微信 发送朋友 打印
提问人:80507 - 泥土工 2级  举报  
地下室底板有后浇带,但外墙要不要留后浇带呢?留的话是否要从基础梁底留通至顶板面呢?梁式筏板基础,高板位的。还有就是做防水涂料的砖胎模阴阳角是不是要做成圆弧状的呢?造价行业最大的互动问答知识信息交流分享平台,凝聚了 造价行业网友的智慧

回答即可得20分,回答被采纳则获得悬赏分以及奖励50分。 积分规则
参考资料:
如果您的回答是从其他地方引用,请表明出处网址。
共 1 条 普通回答
楼层: 1
回答人:32253418 - 泥土工 2级 - 提交时间:2018/8/3 23:13:00  举报
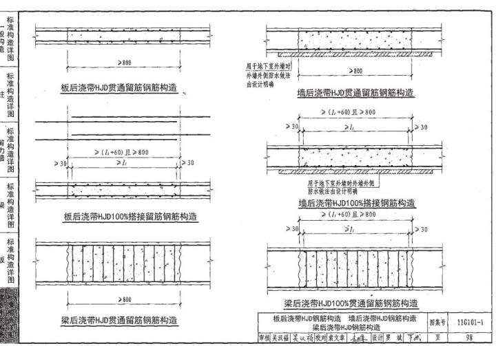
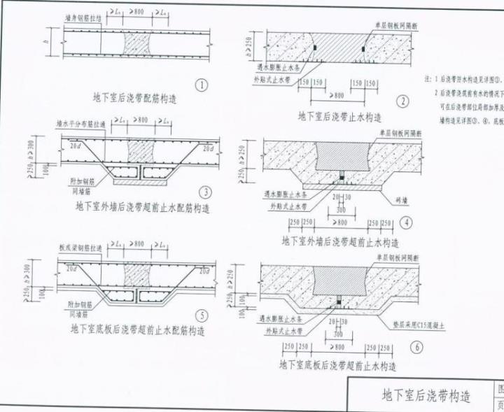
地下室底板有后浇带,外墙也要留后浇带,具体按设计要求,可以采用超前止水做法。做防水涂料的砖胎模阴阳角是要粉成圆弧状。以下后浇带供参考: