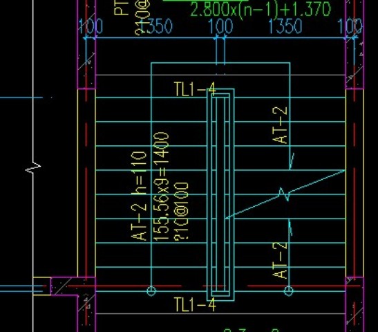
请问这个图怎么识别?

举报 | 删除 2010-12-31 12:19
AT-2 H=110 155.56*9=1400 10@100 各体现什么意思?

闽公网安备 35012102500499号