建筑问答网A125.com > 工程造价管理 > 工程招标 > 提问

桩基的问题 钢筋,图片, 

已解决  --    --  2个回答  次浏览0
分享微信 发送朋友 打印
提问人:20229007 - 泥土工 2级  举报  
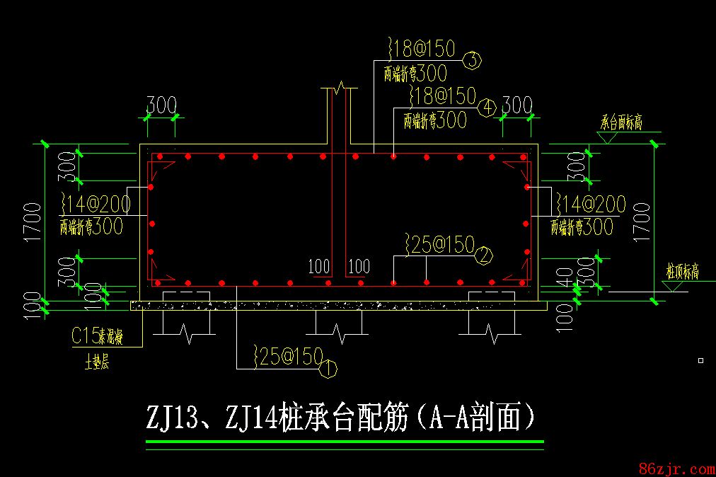
桩承台侧面钢筋问题
最佳答案
楼层: 1
回答人:80185565 - 泥土工 2级 - 提交时间:2016/9/8 14:52:00  举报

你的承台设计要求是怎样的需要有相应的图片,仅仅用这几个文字,无法知道形形色色的承台钢筋。

以下供你参考。也只能是用猜测的方法,假设你的设计钢筋是:

 

如果你使用的是20013钢筋抽样,属性中就可以逐一的输入,图片。

 

2009钢筋抽样,那么底部和面部钢筋用斜杠的要领输入,斜杠前是底部钢筋,斜杠后是面部钢筋,底部和面部的弯就要在工程设置中设置好,图片。

 

侧面钢筋就要在承台属性的其它钢筋中编辑,图片。

 

中国最佳造价交流网站,致力于建设专为造价同行服务的自由交流家园

我要评论 好评次数 0   坏评次数 0
对最佳答案的评论

评论字数在200 字以内
  好评 坏评
共 2 条 普通回答
楼层: 2
回答人:12182554 - 泥土工 2级 - 提交时间:2016/9/8 19:24:00  举报
又一个机会学习哈
楼层: 3
回答人:58303199 - 泥土工 2级 - 提交时间:2016/9/9 0:09:00  举报

承台有梁式配筋,可以直接输入侧面钢筋;有环式配筋是算个方向箍筋形式;有板式配筋,侧面钢筋需要在其它钢筋中输入的。