建筑问答网A125.com > 专业造价 > 清单计价 > 提问

剪力墙暗柱 钢筋,怎么,差别

已解决  --    --  0个回答  次浏览0
分享微信 发送朋友 打印
提问人:90141985 - 泥土工 2级  举报  
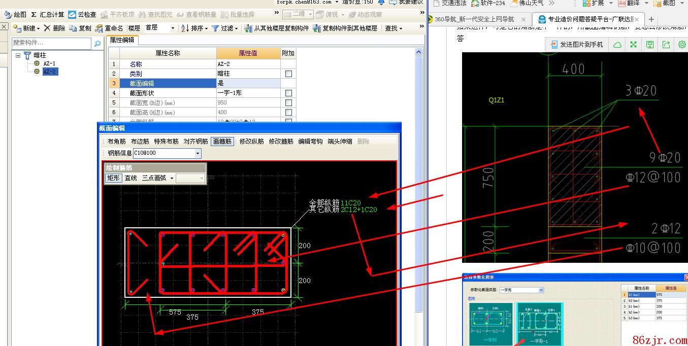
如图所示暗柱该如何界说,我选择用参数化暗柱,能这样吗?如果这样,可是它的角筋是不一样的,用截面编辑钢筋,要怎么修改角筋,以及怎么安排纵筋,谢谢您的回答
最佳答案
楼层: 1
回答人:76067791 - 泥土工 2级 - 提交时间:2016/8/6 21:34:00  举报

答:要领正确,但是你没有勇气往前走吗?凭据你想法往下继续,截面编辑[是],进行界说即可。[[注意接纳特殊布筋效用,处理不在交点上的钢筋。]]

[[柱的属性差别,锚固长度要求差别。框架柱与暗柱不是同一锚固长度的]]]

[[[暗柱,新建,小在角,第一行。]]


造价行业最大的互动问答知识信息交流分享平台,凝聚了 造价行业网友的智慧



我要评论 好评次数 0   坏评次数 0
对最佳答案的评论

评论字数在200 字以内
  好评 坏评