问答首页
我要提问
问题分类
更多
▼
专题
专业机构
专家团
排行榜
共享资料
积分商城
帮助
由于浏览器不支持或者禁用JavaScript,您可能不能使用到本网站的所有功能。
按地区找问题
--请选择--
北京
天津
河北
山西
内蒙古
辽宁
吉林
黑龙江
上海
江苏
浙江
安徽
福建
江西
山东
河南
湖北
湖南
广东
广西
海南
四川
贵州
云南
西藏
重庆
陕西
甘肃
青海
宁夏
新疆
其他
建筑问答网A125.com
>
专业造价
>
清单计价
> 提问
1.请问消防主机至各层端子箱报警信号二总线是串联还是并联?
并联
,
消防
,
信号
已解决 --
-- 0个回答
次浏览
0
分享微信
发送朋友
打印
64345180
提问人:
64345180
-
泥土工 2级
举报
如果到各层没有端子箱报警信号二总线是串联还是并联?
问题补充
提高悬赏
无满意答案
管理此问题
我来回答
最佳答案
01494832
楼层: 1
回答人:
01494832
-
泥土工 2级
- 提交时间:
2015/12/7 12:04:00
举报
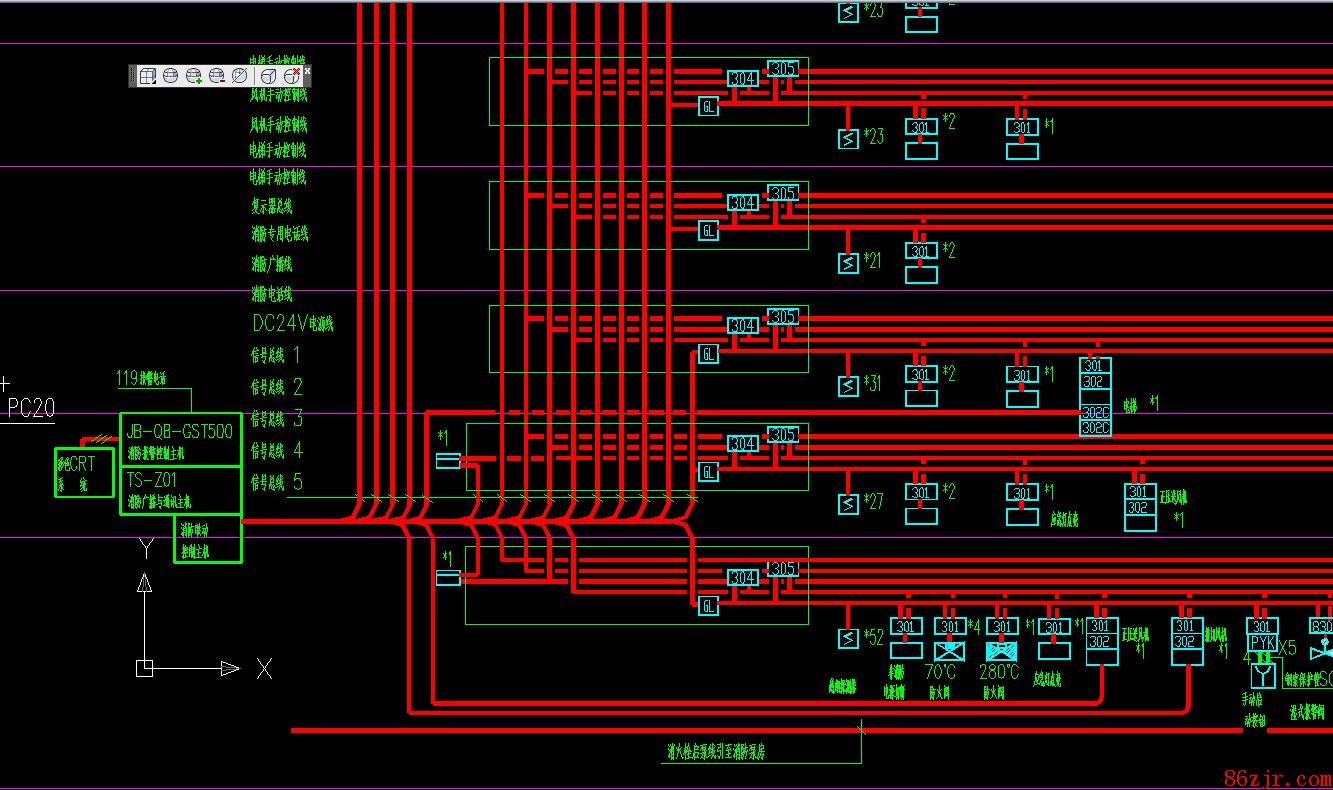
请问消防主机至各层端子箱报警信号二总线是串联还是并联?
答:一般的如果有端子箱的话,消防二总线是是属于并联的。具体的你可以看看下面的图纸
造价行业最大的互动问答知识信息交流分享平台,凝聚了 造价行业网友的智慧
我要评论
0
0
对最佳答案的评论
评论字数在200 字以内
好评
坏评
本站公告
相关问题
潜水泵和消防泵分别套用什么清单与定额?
地下室两层包括车库,人防水暖清包不含消防多少钱一平米合适
消防水池上木质盖板、外侧砸镀锌铁皮
消防模块箱、气体灭火控制盘
因消防验收搭设的单排钢管架
消防系统调试点数问题?
请问,消防水鹤安装该怎样套用定额?
请问这个火灾报警系统的线是怎么看的?
消防变更的签证怎么做
北京住宅楼水电清包价格
火灾消防报警相关问题
引至BA是什么意思
消防工程上通风工程调试、高层增加费、脚手架工程工程量怎么计算
双电源配电箱进线
火灾自动报警系统