建筑问答网A125.com > 专业造价 > 清单计价 > 提问

请问这种楼梯投影面积应该算到哪? 平台,楼梯,休息

已解决  --    --  0个回答  次浏览0
分享微信 发送朋友 打印
提问人:78620659 - 泥土工 2级  举报  
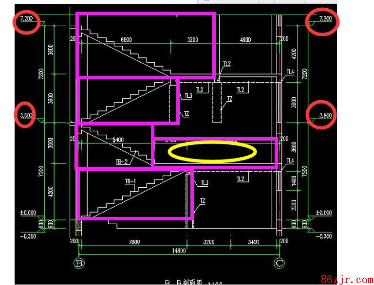
如图所示,休息平台板很长,一层还有利用。请问这个楼梯投影面积怎么算才相符规范?
最佳答案
楼层: 1
回答人:99978969 - 泥土工 2级 - 提交时间:2015/12/22 10:10:00  举报

亲,首先您的楼层的层高信息有误造价行业最大的互动问答知识信息交流分享平台,凝聚了 造价行业网友的智慧


如果您说的就是这段黄色的区域,只要您这里不是楼层的层高范畴,这里就是楼梯的休息平台的,只不过是这个平台部位比较宽敞,因为您这里再没有其他的去处,只是一个楼梯的休息平台作用

那么您次范畴的板就应该是属于楼梯的投影面积的

建筑问答网永远以提供国内外最新、最好、最快的造价专业资讯为目标

二层的和一层的,是一样的,是我的疏忽,我只看一层的半截出的休息平台了

只要不是楼层的层高处的,不克有其他地方的通行的,都是楼梯的休息平台了


我要评论 好评次数 0   坏评次数 0
对最佳答案的评论

评论字数在200 字以内
  好评 坏评