建筑问答网A125.com > 建筑施工 > 市政工程施工 > 提问

请问遇到横向缩缝和胀缝就要设置角隅钢筋吗?  ,钢筋,5m

未解决  --    --  4个回答  次浏览0
分享微信 发送朋友 打印
提问人:76054 - 泥土工 2级  举报  

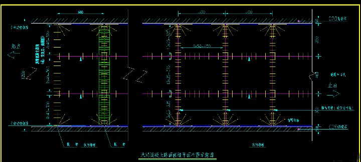
如果我的路面宽度为4m,横向缩缝间距5m/道,胀缝间距100m/道,那相当于每隔5m就要在两侧边沿布设角隅钢筋吗  遇胀缝同上

还有传力杆的布设问题  一般的横向缩缝有“布设传力杆的假缝”型式和“不加传力杆的假缝”两种型式,什么时候需要加传力杆呢     胀缝一定要用传力杆?造价行业最大的互动问答知识信息交流分享平台,凝聚了 造价行业网友的智慧

回答即可得20分,回答被采纳则获得悬赏分以及奖励50分。 积分规则
参考资料:
如果您的回答是从其他地方引用,请表明出处网址。
共 4 条 普通回答
楼层: 1
回答人:73781151 - 泥土工 2级 - 提交时间:2015/3/20 12:04:00  举报
设计规范上有注解!
楼层: 2
回答人:26025086 - 泥土工 2级 - 提交时间:2015/3/20 20:18:00  举报
不错,加油
楼层: 3
回答人:75275 - 泥土工 2级 - 提交时间:2015/3/20 22:17:00  举报
板的直角处都需要设角隅钢筋 
楼层: 4
回答人:89925703 - 泥土工 2级 - 提交时间:2015/3/21 4:09:00  举报
板的直角处都需要设角隅钢筋 
横向缩缝一般可以用不设传力杆,临近涨缝和自由端处的3条缩缝应采用传力杆假缝
胀缝都应该采用滑动传力杆的形式