建筑问答网A125.com > 建筑施工 > 市政工程施工 > 提问

这个桥墩是偏心受压吗? 行业,分别,米箱梁和

未解决  --    --  10个回答  次浏览0
分享微信 发送朋友 打印
提问人:75968 - 泥土工 2级  举报  

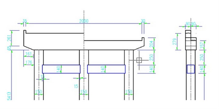
这个桥墩是偏心受压吗?支座上分别是30米箱梁和20米空心板。

造价行业最大的互动问答知识信息交流分享平台,凝聚了 造价行业网友的智慧


建筑问答网永远以提供国内外最新、最好、最快的造价专业资讯为目标

回答即可得20分,回答被采纳则获得悬赏分以及奖励50分。 积分规则
参考资料:
如果您的回答是从其他地方引用,请表明出处网址。
共 10 条 普通回答
楼层: 1
回答人:98368901 - 泥土工 2级 - 提交时间:2015/3/7 5:50:00  举报

是,的。

楼层: 2
回答人:74539 - 泥土工 2级 - 提交时间:2015/3/7 6:55:00  举报
楼层: 3
回答人:61843402 - 泥土工 2级 - 提交时间:2015/3/7 13:12:00  举报
看大样图不象偏心,看小大样是偏心。
楼层: 4
回答人:59689765 - 泥土工 2级 - 提交时间:2015/3/7 23:11:00  举报
偏心的
楼层: 5
回答人:12262902 - 泥土工 2级 - 提交时间:2015/3/8 2:38:00  举报
这种设计做法,根据承载板的设计做法;静载不会偏心受压的!
楼层: 6
回答人:72710 - 泥土工 2级 - 提交时间:2015/3/8 5:35:00  举报
是!
楼层: 7
回答人:85685947 - 泥土工 2级 - 提交时间:2015/3/8 7:22:00  举报
正面没有偏
楼层: 8
回答人:35473509 - 泥土工 2级 - 提交时间:2015/3/8 12:24:00  举报
楼层: 9
回答人:51650764 - 泥土工 2级 - 提交时间:2015/3/8 16:32:00  举报
偏心的
楼层: 10
回答人:92931267 - 泥土工 2级 - 提交时间:2015/3/8 21:24:00  举报
不是的