问答首页
我要提问
问题分类
更多
▼
专题
专业机构
专家团
排行榜
共享资料
积分商城
帮助
由于浏览器不支持或者禁用JavaScript,您可能不能使用到本网站的所有功能。
按地区找问题
--请选择--
北京
天津
河北
山西
内蒙古
辽宁
吉林
黑龙江
上海
江苏
浙江
安徽
福建
江西
山东
河南
湖北
湖南
广东
广西
海南
四川
贵州
云南
西藏
重庆
陕西
甘肃
青海
宁夏
新疆
其他
建筑问答网A125.com
>
专业造价
>
安装工程
> 提问
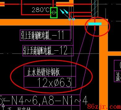
电气中电缆进户处有止水热镀锌钢板,请问图中钢板的尺寸怎么理解,怎么样计算,怎么样套取定额,谢谢
钢板
,
定额
,
电缆
已解决 --
-- 0个回答
次浏览
0
分享微信
发送朋友
打印
91852718
提问人:
91852718
-
泥土工 2级
举报
新手,不懂止水钢板体现的什么意思,也不知道怎么计算,是不是体现的9块直径169的钢板和12块直径63的钢板?
建筑问答网永远以提供国内外最新、最好、最快的造价专业资讯为目标
怎么样套取
定额
问题补充
提高悬赏
无满意答案
管理此问题
我来回答
最佳答案
55608343
楼层: 1
回答人:
55608343
-
泥土工 2级
- 提交时间:
2015/12/5 15:06:00
举报
可以凭据
电缆
管的管径选取相应的柔性或者刚性套管的定额,止水钢板的作用就相当土建的止水片的作用
我要评论
0
0
对最佳答案的评论
评论字数在200 字以内
好评
坏评
本站公告
相关问题
定额模板无法克隆
补充定额时怎样编制定额细目表
交通部是否有2015定额?
清水墙怎么套用定额,施工工艺要求比较高,比挡土墙造价要高许多。清水墙就是用好的石头材料人工码砌,里面有砂浆浆砌,外面看不到砂浆,就像公园里的城墙。
请问RX-075型被动防护网怎么套定额?
07公路定额的材料消耗量是否都不包含损耗的?是不是都要通过统计混凝土需计拌和量来重新填写定额工程量才行?
如何补充定额
定额消耗为何不能调整
陕西省的预算中 浆砌片石的定额 在定额人工上需要乘以0.6的系数? 有这规定吗?有的话 这条有什么依据? 请告知
当前项包含子项 不允许添加定额
机械的不变费用,软件里比定额里的低,这个费用是受什么影响。软件里是215.29,定额里是245.
减速条套用什么定额?
交通部公路07定额中,关于桥面铺装混凝土、预制梁混凝土等混凝土凿毛工序含不含在定额中?
1-11-1是什么定额怎么找不到
锥坡基础套什么定额