问答首页
我要提问
问题分类
更多
▼
专题
专业机构
专家团
排行榜
共享资料
积分商城
帮助
由于浏览器不支持或者禁用JavaScript,您可能不能使用到本网站的所有功能。
按地区找问题
--请选择--
北京
天津
河北
山西
内蒙古
辽宁
吉林
黑龙江
上海
江苏
浙江
安徽
福建
江西
山东
河南
湖北
湖南
广东
广西
海南
四川
贵州
云南
西藏
重庆
陕西
甘肃
青海
宁夏
新疆
其他
建筑问答网A125.com
>
专业造价
>
安装工程
> 提问
电源线应该怎么样连接到消火栓启泵按钮?
连接
,
电源
,
an
已解决 --
-- 1个回答
次浏览
0
分享微信
发送朋友
打印
76251879
提问人:
76251879
-
泥土工 2级
举报
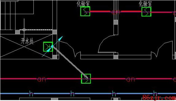
平面图没有明确画出电源线的连接,直说an线局部包括D电源线,但是向这种独立的启泵线由下引上的消火栓按钮跟an线没有连接的情况,电源线应该怎么走呢?就近连接吗?还是跟气泵控制线一样由下引上?但是电源线还要连接声光报警装置啊
问题补充
提高悬赏
无满意答案
管理此问题
我来回答
最佳答案
08481044
楼层: 1
回答人:
08481044
-
泥土工 2级
- 提交时间:
2015/2/9 0:53:00
举报
消火栓启泵按钮不连接电源线(h),只连接不含(D)的(an)线,像上图每层都有(an)线的
工程
,可连接在就近的感烟探测器上;如果只有一层有(an)线的工程,可在一层连接在就近的感烟探测器上,立管中加入(an)线。
我要评论
0
0
对最佳答案的评论
评论字数在200 字以内
好评
坏评
共 1 条
普通回答
75477384
楼层: 2
回答人:
75477384
-
泥土工 2级
- 提交时间:
2015/2/9 9:41:00
举报
你好:系统图不合适,消火栓的启泵线是4芯,2芯用于启泵,2芯反馈信号,这里不需要电源线的,按照平面图布管线直接引上引下即可。
我来回答
本站公告
相关问题
镀锌钢管刷不刷漆?
安装的问题
消火栓,自喷系统中管道卡箍连接其中卡箍、三通、弯头的数量怎么计算?
市政热力站墙内内外连接是不带 介质勾头吗?如何套定额呢?需要大仙指示
综合单价固定的合同如果管材变更工艺没变需要重新组价不
柱与梁焊接点问题
跨接与接地母线的问题
陕99定额钢筋直螺纹连接费用的计取
道路工程铺设钢筋连接的方式是什么 还有为什么钢筋都是直锚 无弯钩 谢谢
小市政管道,电热熔连接套哪个定额
燃气聚乙烯塑料管什么时候用热熔连接,什么时候用电容连接
箱变与大市政的电源接驳费用怎么考虑,计算的?
关于塑料管
防水开关电源要套什么定额啊 是桥梁照明里面的
热力管会做法兰橡胶软接头吗