问答首页
我要提问
问题分类
更多
▼
专题
专业机构
专家团
排行榜
共享资料
积分商城
帮助
由于浏览器不支持或者禁用JavaScript,您可能不能使用到本网站的所有功能。
按地区找问题
--请选择--
北京
天津
河北
山西
内蒙古
辽宁
吉林
黑龙江
上海
江苏
浙江
安徽
福建
江西
山东
河南
湖北
湖南
广东
广西
海南
四川
贵州
云南
西藏
重庆
陕西
甘肃
青海
宁夏
新疆
其他
建筑问答网A125.com
>
专业造价
>
清单计价
> 提问
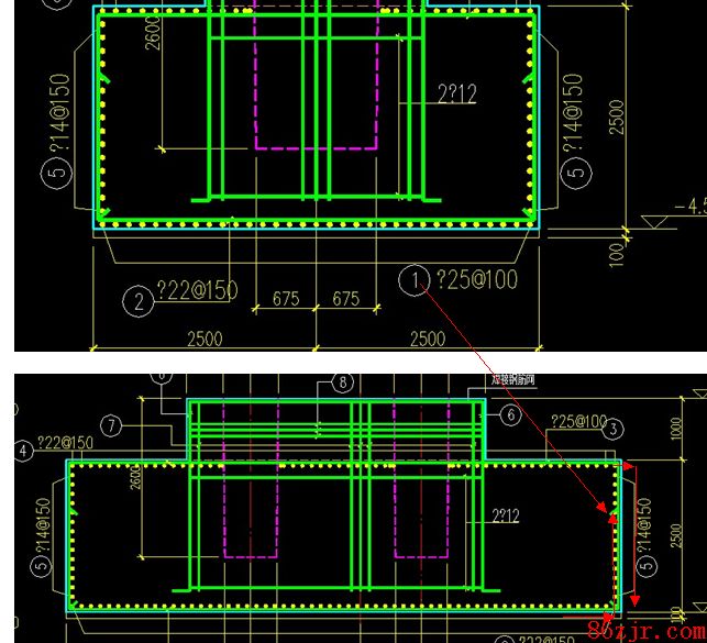
独立柱基(钢结构)3.2*6.2,有底筋和上部筋,请问底筋和上部筋是否计锚固值?
0
,
长度
,
独立
已解决 --
-- 1个回答
次浏览
0
分享微信
发送朋友
打印
01758194
提问人:
01758194
-
泥土工 2级
举报
独立柱基(钢结构)3.2*6.2,有底筋1号和上部筋3号,请问底筋和上部筋是否计锚固值?
问题补充
提高悬赏
无满意答案
管理此问题
我来回答
最佳答案
02419769
楼层: 1
回答人:
02419769
-
学 徒 1级
- 提交时间:
2013/10/27 22:05:00
举报
你好:不要计算锚固长度,图中给出了底筋的上弯长度和上筋的下弯长度。
我要评论
0
0
对最佳答案的评论
评论字数在200 字以内
好评
坏评
共 1 条
普通回答
27183388
楼层: 2
回答人:
27183388
-
泥土工 2级
- 提交时间:
2013/10/28 2:20:00
举报
施工
图中底筋1号和上部筋3号的弯钩部分就是该钢筋的锚固长度。
我来回答
本站公告
相关问题
管沟土石方按工程量清单计价规范如何计算长度
钢结构栏杆计算工程量
角筋的计算
角筋的计算
抗扭钢筋计算
小区内一期工程外网雨水管给二期预留管长度留多长?
怎样手算电线管长度
填充墙是不是必须套钉挂钢丝网墙面和钉挂钢丝网柱面?
檐沟长度工程量
排水管道清单工程量计算
清单中,独立基础怎么算啊,图上没有标注出垫层,还要算垫层吗?
云南03定额关于楼梯扶手、栏杆
定额计算护筒长度 是埋深还是周长?
电缆工程量核量问题
管道长度问题