问答首页
我要提问
问题分类
更多
▼
专题
专业机构
专家团
排行榜
共享资料
积分商城
帮助
由于浏览器不支持或者禁用JavaScript,您可能不能使用到本网站的所有功能。
按地区找问题
--请选择--
北京
天津
河北
山西
内蒙古
辽宁
吉林
黑龙江
上海
江苏
浙江
安徽
福建
江西
山东
河南
湖北
湖南
广东
广西
海南
四川
贵州
云南
西藏
重庆
陕西
甘肃
青海
宁夏
新疆
其他
建筑问答网A125.com
>
专业造价
>
园林工程
> 提问
这个在钢筋软件里怎么定义参数化暗柱
软件
,
钢筋
,
怎么
已解决 --
-- 2个回答
次浏览
0
分享微信
发送朋友
打印
15639159
提问人:
15639159
-
泥土工 2级
举报
这个在钢筋软件里怎么界说参数化暗柱
问题补充
提高悬赏
无满意答案
管理此问题
我来回答
最佳答案
69715262
楼层: 1
回答人:
69715262
-
泥土工 2级
- 提交时间:
2014/3/19 4:16:00
举报
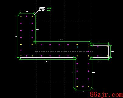
你好:这样的暗柱软件里自己界说一下网格,请看我帮你界说的图。
我要评论
0
0
对最佳答案的评论
评论字数在200 字以内
好评
坏评
共 2 条
普通回答
48650552
楼层: 2
回答人:
48650552
-
泥土工 2级
- 提交时间:
2014/3/19 10:09:00
举报
用识别柱大样的方法定义。或用自定义异形柱的方法定义。
43899313
楼层: 3
回答人:
43899313
-
泥土工 2级
- 提交时间:
2014/3/19 16:26:00
举报
这要用异形柱定义的,定义网格后自己画图处理。
是的,没有参数图可用时就要定义网格自己画图,什么样的特殊图形都可以画出来的。
我来回答
本站公告
相关问题
30
单悬臂标志中镀锌螺栓,镀锌法兰,铝合金标志怎么调量
咱软件河南取费啥时候升级,谢谢
清水墙怎么套用定额,施工工艺要求比较高,比挡土墙造价要高许多。清水墙就是用好的石头材料人工码砌,里面有砂浆浆砌,外面看不到砂浆,就像公园里的城墙。
增值税怎么转到营业税
怎么在要到处的报表里面添加文字
机械的不变费用,软件里比定额里的低,这个费用是受什么影响。软件里是215.29,定额里是245.
1-11-1是什么定额怎么找不到
软件中工料机的预算单价是含税的还是不含税的
软件能不能填写编制说明
请问,预埋铁件怎么套价?
材料怎么扣税
框架柱钢筋工程量计算方法
山西清单造价 暂估价
在套定额的时候,挖机的容量该怎么确定
集水井怎么套定额