建筑问答网A125.com > 专业造价 > 市政工程 > 提问

北京市政道路工程,道路基层宽度如何取定? 基层,宽度,计算

已解决  --    --  1个回答  次浏览0
分享微信 发送朋友 打印
提问人:70363498 - 泥土工 2级  举报  
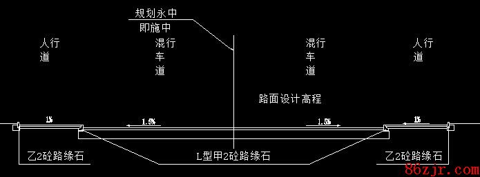
北京2001定额,市政门路工程,基层计算规则”种种基层按设计图示尺寸以平方米计算“,请问基层的宽度是否计算路两侧放坡宽度,即是问按基层断面的底层宽度还是按外貌宽度计算?谢大侠指教。
最佳答案
楼层: 1
回答人:21353505 - 泥土工 2级 - 提交时间:2015/2/9 15:25:00  举报

基层的宽度不计算路两侧放坡宽度,按设计图示尺寸以平方米计算。按基层断面的底层宽度计算。

门路基层比门路宽出一点,但是没有放坡宽度,按基层设计图示尺寸计算就行。能否截图一下。q:997363394


我要评论 好评次数 0   坏评次数 0
对最佳答案的评论

评论字数在200 字以内
  好评 坏评
共 1 条 普通回答
楼层: 2
回答人:75582103 - 泥土工 2级 - 提交时间:2015/2/9 22:59:00  举报
工程量计算规则

......

三、各类基层按设计图示尺寸以面积计算,不扣除各种检查井及雨水口所占面积。基层宽度按设计截面的平均宽度计算。基层厚度18cm,1:1坡度,是基层的宽度还要加18cm来计算基层面积。