问答首页
我要提问
问题分类
更多
▼
专题
专业机构
专家团
排行榜
共享资料
积分商城
帮助
由于浏览器不支持或者禁用JavaScript,您可能不能使用到本网站的所有功能。
按地区找问题
--请选择--
北京
天津
河北
山西
内蒙古
辽宁
吉林
黑龙江
上海
江苏
浙江
安徽
福建
江西
山东
河南
湖北
湖南
广东
广西
海南
四川
贵州
云南
西藏
重庆
陕西
甘肃
青海
宁夏
新疆
其他
建筑问答网A125.com
>
专业造价
>
市政工程
> 提问
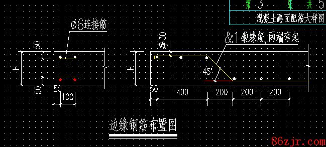
请问一下这部分怎么计算的,谢谢
计算
,
请问
,
一下
已解决 --
-- 0个回答
次浏览
0
分享微信
发送朋友
打印
96507586
提问人:
96507586
-
泥土工 2级
举报
问题补充
提高悬赏
无满意答案
管理此问题
我来回答
最佳答案
70054227
楼层: 1
回答人:
70054227
-
泥土工 2级
- 提交时间:
2015/2/24 14:57:00
举报
凭据
施工
图中 标注尺寸计算,斜长可以利用三角关系计算实际长度;
我要评论
0
0
对最佳答案的评论
评论字数在200 字以内
好评
坏评
本站公告
相关问题
公路标志牌(铝合金标志)在做预算时,怎样计算立柱和面板的工程,怎么套定额呢?
桥梁满堂支架中的安全通道需要额外计算费用吗?
挖掘机进出场费如何计算
?请问钢绞线工程量如何计算
请问,预埋铁件怎么套价?
请问这个分析表从哪里可以下载到?
管沟土石方按工程量清单计价规范如何计算长度
我想问一下广联达计价5.0为什么税金没有标明计算基数?哪位大神知道?
清单管沟土方计算
急需要GB50857《市政工程工程量计算规范)
请问此图中过道处建筑面积如何计算?过道外围是栏杆,请说出依据。
卫生间降板问题计算
自动喷水灭火系统调试单位是点,工程量是按喷头的点位计算吗
清单计量问题
钢结构栏杆计算工程量