问答首页
我要提问
问题分类
更多
▼
专题
专业机构
专家团
排行榜
共享资料
积分商城
帮助
由于浏览器不支持或者禁用JavaScript,您可能不能使用到本网站的所有功能。
按地区找问题
--请选择--
北京
天津
河北
山西
内蒙古
辽宁
吉林
黑龙江
上海
江苏
浙江
安徽
福建
江西
山东
河南
湖北
湖南
广东
广西
海南
四川
贵州
云南
西藏
重庆
陕西
甘肃
青海
宁夏
新疆
其他
建筑问答网A125.com
>
专业造价
>
市政工程
> 提问
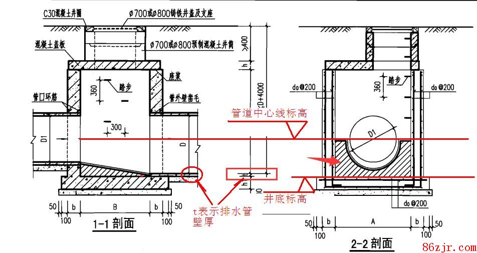
06MS201-3排水检查井中检查井的流槽高度如何确定的?还有图中的t是指什么厚度?
检查井
,
确定
,
还有
已解决 --
-- 1个回答
次浏览
0
分享微信
发送朋友
打印
10300165
提问人:
10300165
-
泥土工 2级
举报
问题补充
提高悬赏
无满意答案
管理此问题
我来回答
最佳答案
24577218
楼层: 1
回答人:
24577218
-
泥土工 2级
- 提交时间:
2014/12/20 8:34:00
举报
06MS201-3排水检查井中检查井的流槽高度=管道中心标高-井底标高确定,还有图中的t是指管道的壁厚。
我要评论
1
0
对最佳答案的评论
评论字数在200 字以内
好评
坏评
共 1 条
对最佳答案的评论
guest
评论人:游客 - 提交时间:
2015/11/29 20:46:00
举报
好
共 1 条
普通回答
54222466
楼层: 2
回答人:
54222466
-
泥土工 2级
- 提交时间:
2014/12/20 18:28:00
举报
溜槽高度是根据井室两侧管道的底标高确定的,图中的t表示的是管道的壁厚
我来回答
本站公告
相关问题
套接线箱定额如何确定是明装还是暗装
设计只告诉乔木的高度与冠幅如何确定土球直径
DP15水泥砂浆是什么东西?套什么定额?
砌筑检查井非定型井砌筑(特细砂) 砖砌矩形井M5 这是定额,工程量的单位是m3,怎么计算工程量呢?
广东 定额:空桩的工程量如何确定?
根据这三个图看看检查井什么形状
塑料市政排水管的清单工程量是否要扣除检查井的长度
检查井的管径、井径等的区分
市政工程检查井
我想问污水管还有雨水管管沟的宽度是不是有定额说明的?埋深怎么算?还有单体雨水管的长度
12S522图集模块式检查井需要抹灰么
河南省市政工程中直径1100mm,深2.5m的混凝土模块式圆形雨水检查井套什么定额
请问市政套定额“矩形砌筑直线雨水检查井子目和砖砌矩形一侧交汇雨水检查井子目有什么区别?
多个同型号检查井井是一个个算还是直接取其平均井深乘数量
预算中遇到的问题